立磨工作原理有傳統立磨與新版立磨區別,新型高效立磨是一種理想的大型粉磨設備,廣泛應用于水泥、電力、冶金、化工、非金 屬礦等行業。它集破碎、干燥、粉磨、分級輸送于一體,生產效率高,可將塊狀、顆粒狀及粉狀原料磨成所要求的粉狀物料。比較常見的立磨減速機有二級減速式立磨齒輪減速機,三級齒輪減速式立磨減速機,雙行星三級減速式立磨減速機。在立磨系統中,主要設備通常包括:磨主電機,磨主齒輪減速機,減速機潤滑裝置,主電機稀油站,吐渣斗提,液壓裝置,磨輥潤滑裝置,密封風機,磨機噴水裝置,回轉鎖風閥,振動喂料機,立磨選粉裝置。
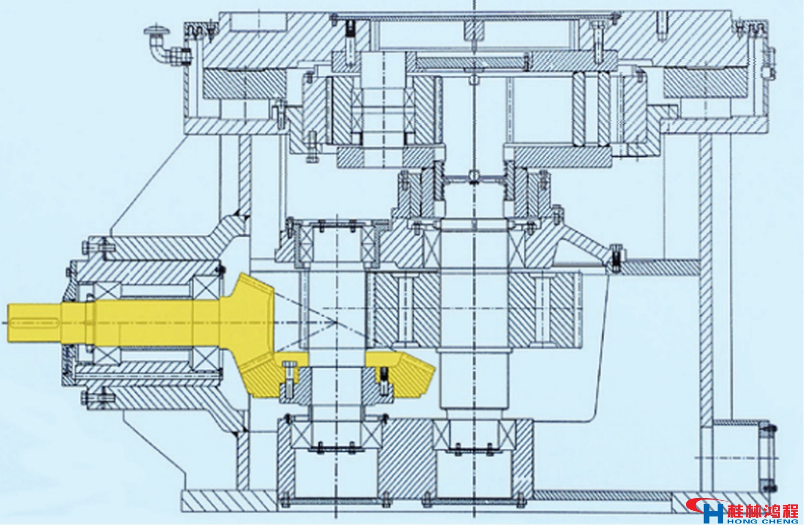
二級減速式立磨齒輪減速機(見圖2)

此減速機采用一級錐齒輪、二級行星輪結構。
主要優點:結構簡單、安全可靠;效率高、運轉平穩:易與安裝維護等。
(1)錐齒輪傳動部分
齒輪減速機輸入級為一對錐齒輪。大小齒輪均采用滲碳淬火鋼進行制造,并采用硬齒面加工方法加工而成,強度很高。小錐齒輪和大錐齒輪均通過軸承座裝入下殼體中,兩軸承座法蘭下設有調整墊,用于調整齒輪副接觸區的位置和齒側間隙。
(2)行星級齒輪傳動部分
行星級齒輪傳動主要由太陽輪、行星輪、內齒圈等組成。工作時太陽輪浮動,以便使其輪齒同時和三個行星輪均勻接觸,達到均載目的;行星輪安裝在行星架上,在繞自身軸線傳動的同時,也隨行星架繞太陽輪公轉。內齒圈固定在殼體上。太陽輪,行星輪均為滲碳淬火后磨齒齒輪,內齒圈為調質齒輪。
(3)鼓形內齒套
在兩級齒輪傳動之間設置了鼓形內齒套,其作用是連接兩級齒輪之間的傳動。內齒套隨行星級中的太陽輪一起浮動。
(4)平面滑動推力軸承
為承受磨機工作中的動靜載荷,減速機上部設置了平面滑動推力軸承,靠高壓油在推力盤和推力瓦之間行成一層動壓潤滑油膜進行工作。
二:三級齒輪減速式立磨減速機(見圖3)

立磨減速機維修技巧請聯系立磨廠家
桂林鴻程礦山設備制造有限責任公司是中國粉體設備行業的龍頭企業,是專業開發、設計、生產碾磨、破碎及超細粉碎設備的專業生產 公司。鴻程擁有各項專利20余項,具有自主出口權,是國內主要的粉體設備制造企業和出口基地。目前立式磨粉機有經典款兩種,HLM立式磨粉機和HLMX超細立式磨粉機.立磨減速機維修技巧請聯絡桂林鴻程。